預增稠螺旋卸料過濾離心機

◆ 產品概述:
1.HWZ320、450、530、650、800型多段連續預增稠螺旋卸料過濾離心機是一種連續操作的雙錐結構的多段過濾式離心機。其具有處理量大,能耗低,性能穩定,分離效果好等特點。它可在全速運轉時對懸浮液進行連續地進料,濃縮、洗滌,脫水和卸料,是目前國內外固液分離機械中構造新穎、技術先進、高效低耗的分離設備。該機型廣泛應用于化工、食品、鹽、采礦、制藥等行業。
◆ 適用范圍:
該機適應范圍廣、對物料的適應性強,應用行業廣泛,其主要適用范圍:
1.分離的顆粒直徑一般為0.05~10mm,范圍在0.1~3mm的顆粒,效果尤佳;
2.分離形狀為線狀及晶體狀的固體效果較好;
3.懸浮液和沉積固體的分離;
注意:本機為普通型機型,本機所配置的電機為普通型三相異步電動機。本機不適合在有防爆要求的場合使用。
如客戶需分離易燃易爆的物料或在防爆要求較高的場合使用,在訂合同時必須明確分離介質的性質、防爆要求及采用何種防爆措施。
需要說明的是,對于離心機的生產能力,與所分離物料的理化性質(如粘度、流動性、含固量)、生產工藝、操作工人的熟練程度、離心機啟動和制動方式的選用等有直接的關系。
◆ 技術參數:

主機轉鼓起動運轉正常后,料液從進料管進入內轉鼓(螺旋體)內腔,由于離心力場的作用,料液從內腔出液口均勻流入外轉鼓濃縮區內腔,液相經濃縮區溢流口溢出,固相則由螺旋與外轉鼓的差速,將物料推向螺旋的小端進入過濾端,再經過濾端的濾網孔隙將物料中剩余的液體進行過濾并排出機體。固相則被截留在濾網內側,再由螺旋葉片逐一推向出料口,從出料口排出。 注:如有洗滌工藝要求時,在螺旋將物料推向出料口的同時進行洗滌,能達到較 好的洗滌效果。
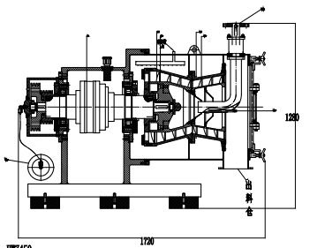
◆ 結構簡述:
HWZ450 離心機主要由機座部件、主軸傳動部件、外轉鼓部件、內螺旋組件、外螺旋組件、機殼組件、進料洗滌管組件、門蓋部件、電機部件、風機部件、差速器及扭矩保護器等組成。具體結構見下圖:




